Skip til hoved indholdet MinSide MinSide

5.028 kr. pr.md

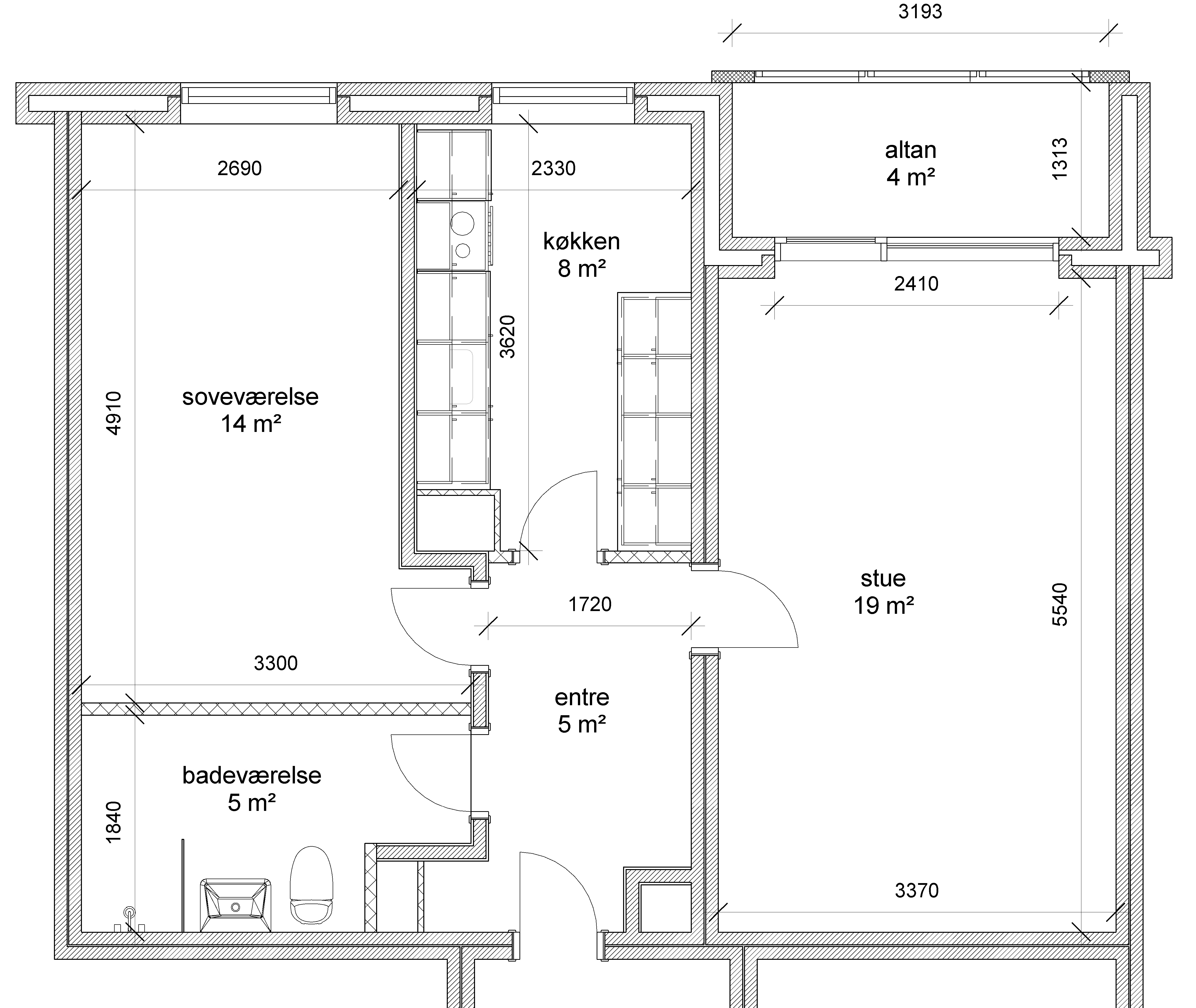
Almindelig bolig | 2 vær. | 66 m² | Indskud: 17.292 kr.

Denne afdeling har boliger på Strubjerg og Skolevej.

Velholdt etageejendom og gedigent murstensbyggeri med 96 lejligheder på adressen Strubjerg 42-56. Opført i 1980. Her er et godt beboersammenhold med en aktiv afdelingsbestyrelse og mange aktiviteter.

I afdelingen er der desuden 15 ældreboliger, opført i 1989 beliggende på Skolevej 40-70, og et lille specialcenter med fem beskyttede boliger.

Afdelingen ligger tæt på busforbindelser til Aalborg C. og der er kort vej til indkøb, institutioner og skole.

Faciliteter

Elevator

Nej

Husdyr

Nej

TV/Internet
Ja

Lejeren skal selv bestille disse produkter hos leverandøren og betale direkte til leverandøren.

Altan/Have
Ja

Alle lejlighederne på Strubjerg 42-56 har lukkede altaner. Ældreboligerne på Skolevej 40-70 har egen have.

Fællesfaciliteter
Ja

Der er pengeløst vaskeri i kælderen. Selskabslokaler og gæsteværelser kan lejes som beboer i boligselskabet.

Hårde hvidevarer
Ja

Der er komfur og emhætte i lejligheden. Lejeren medbringer selv køleskab.

El
Se mere

Lejer betaler direkte til forsyningsselskab efter måler.

Vand og varme
Se mere

Vand er inkluderet i huslejen, med undtagelse af boligerne på Skolevej. Her betaler lejer a/c vand via huslejen. Der udarbejdes vandregnskab én gang om året. Lejer betaler a conto varme via huslejen. Der udarbejdes varmeregnskab én gang om året. Der er fjernvarme i afdelingen.

Garager og carporte

Ja

Ladestander

Nej

Øvrige faciliteter
Ja

Alle lejligheder har adgang til et kælderum.

Tilmeld nyhedsbrev

Sundby-Hvorup Boligselskab

Lindholm Søpark 4,
9400 Nørresundby

Tlf.: 98 17 30 66 / E-mail: info@sundbyhvorup.dk
CVR nr. 18788136

Genveje